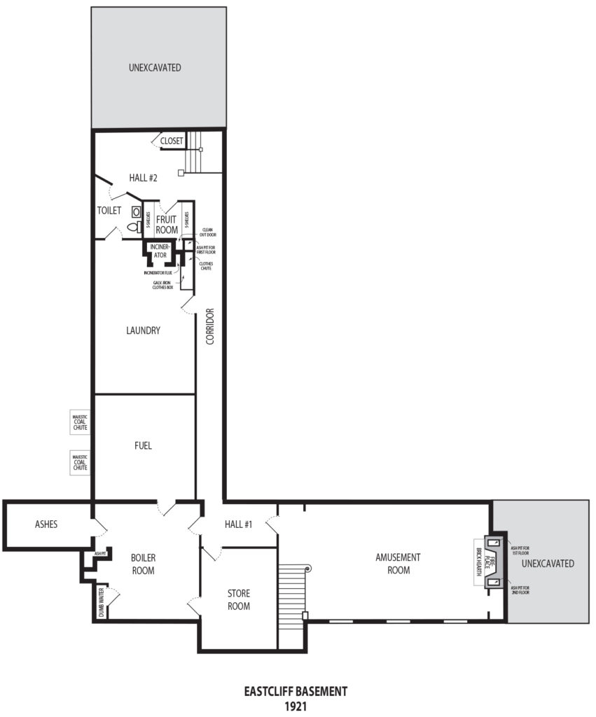
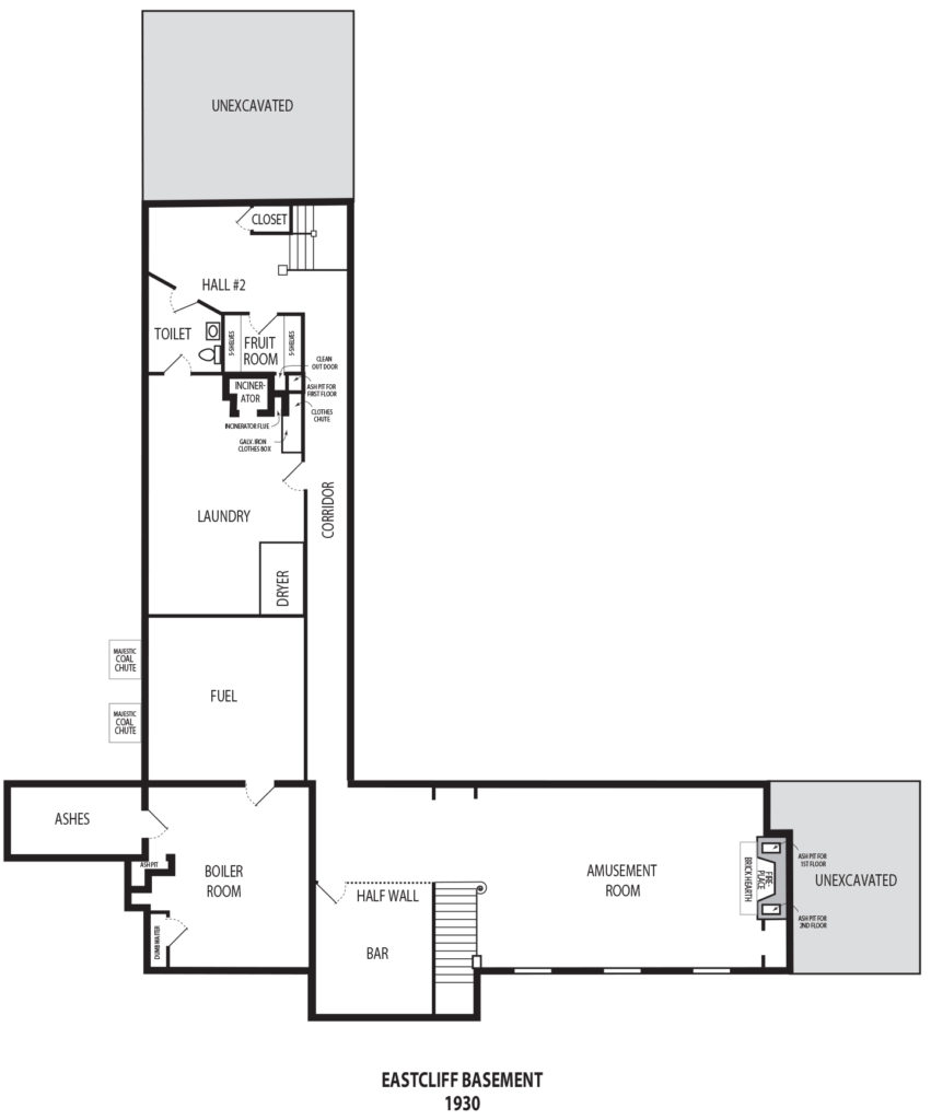
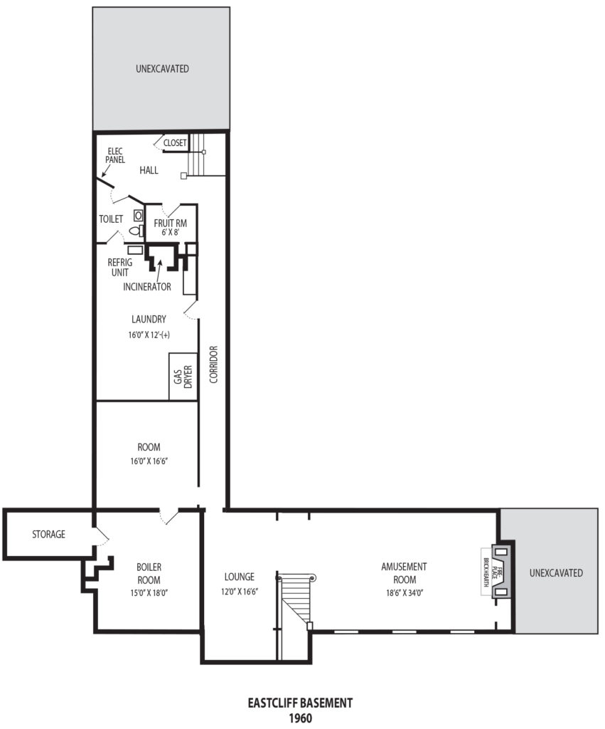
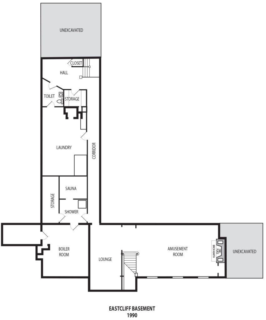
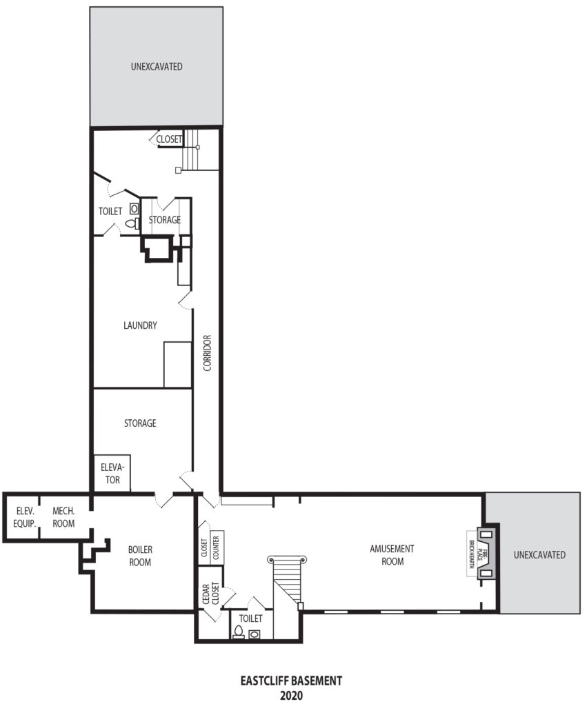
The Eastcliff basement has change less than the rest of the house, but there have been some changes, as shown by comparing the floor plans. Floor plans here, from 1921, 1930, 1960, 1990, and 2020, document the changes.





Following is a pdf file with higher resolution versions of all the Eastcliff floor plans (drawn by and copyright Karen Kaler).