Left: 1921 floor plan detail, Right: 1937 plan for dining expansion – Never built 1968 plans to expand the dining and entertainment spaces – Never built
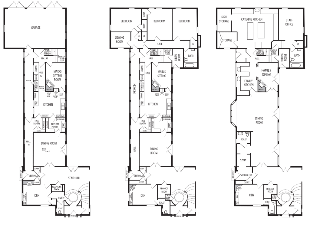
Eastcliff remodels – Left: 1921 original floor plan; Center: 1930 remodel added three maids’ rooms to the first floor (the two second floor maids’ rooms were expanded and converted into guest quarters), the telephone room was expanded and became the peacock room; Right: 1990 floor plan shows the 1980s remodel that expanded the dining room and converted the servants’ quarters into a catering kitchen and office.
The current dining room, looking in, west to east
The current dining room, looking east to west
Following is a pdf file with higher resolution versions of all the floor plans.