Before and After 1619 In the quick-skim version of American colonial history, our country began in byKaren KalerApril 11, 2026
Stolen Children An as-yet unpublished work of literary historical fiction byKaren KalerApril 10, 2026
A History of Harcourt House Known as the Zerbe/Halle Mansion and the CWRU official residence byKaren KalerJune 6, 2023
An Intimate Look at Presidential Families Presidents' personal lives in photographs and media coverage
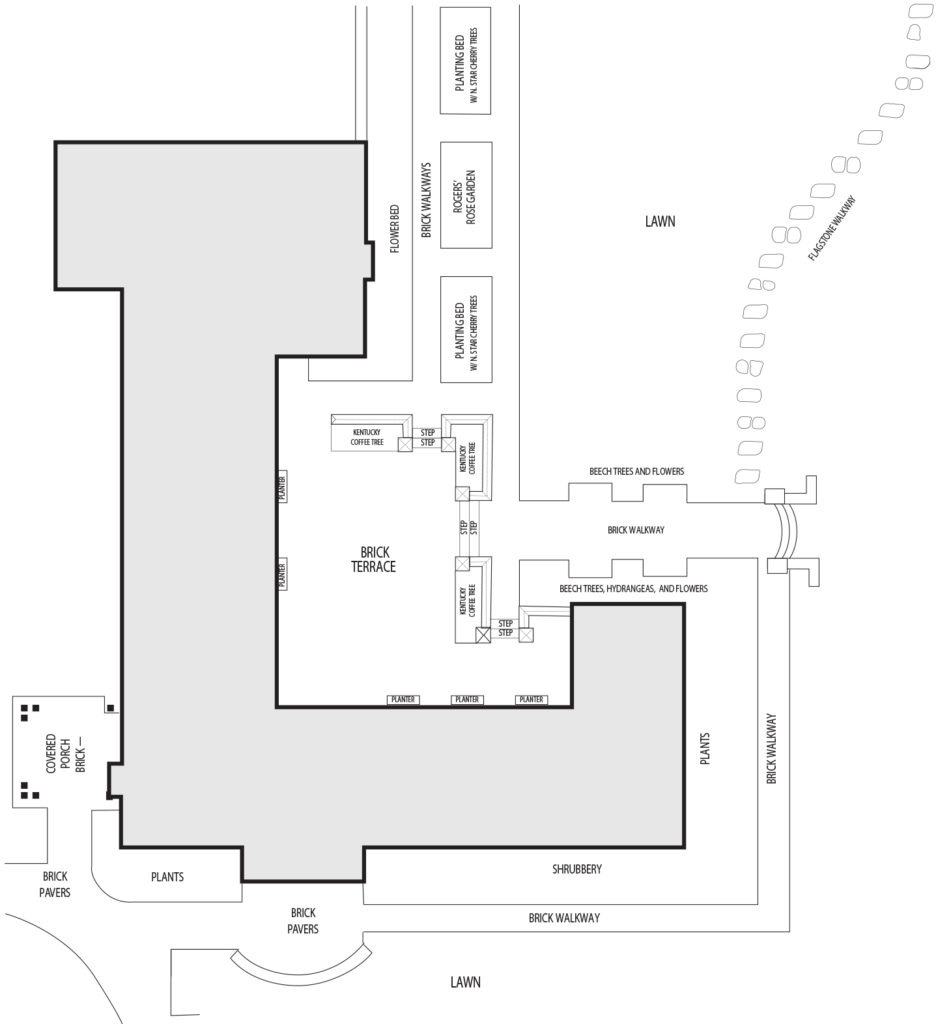
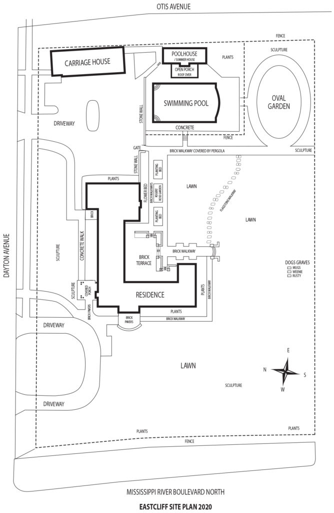
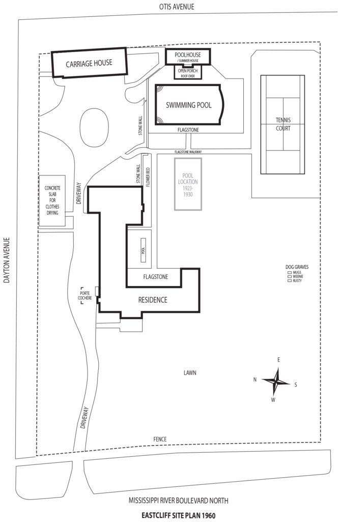
Eastcliff Eastcliff: Navigating the Book and the Website This site map includes the table of contents of the book and related webpages 5 minute readApril 17, 2023
Blog Eastcliff Official Residences of Presidents and Chancellors of Universities and Colleges Why are college presidents, who are typically well-paid, provided with housing? 6 minute readMarch 25, 2023
Children's Books Eastcliff Finding Deacon: The Story of the Eastcliff Dollhouse Both the young and the young-at-heart delight in the Eastcliff dollhouse, which 1 minute readMarch 25, 2023
Children's Books Eastcliff Weenie Meets Helen Keller Dachshund Weenie insisted on meeting Helen Keller 1 minute readMarch 25, 2023